Lot 18 - 1a Erskine Street, Newry, County Down, BT35 6BX

  • Unconditional Online Auction Sale
  • Guide Price* : £68,000
  • Bedrooms: 3
  • Bathrooms: 1
  • Reception Rooms: 1
  • Three Bedroom, Second Floor Apartment
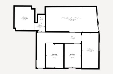
  • Spacious Accommodation Extending to Approx 63.37 sqm
  • Great Investment Potential
  • City Centre, Local Schools and Leisure Centre Within Walking Distance

Location

The property enjoys a highly convenient setting just approximately 0.5 miles from Newry city centre, placing a comprehensive range of retail, commercial, and leisure amenities within easy reach. Residents benefit from immediate access to shopping centres, independent retailers, cafés, restaurants, and essential services, all contributing to a vibrant and well-served urban environment. Transport connectivity is a key feature of this location, with swift access to the A1 dual carriageway providing efficient commuter routes to Belfast and Dublin. This strategic position ensures straightforward travel both north and south, making the property particularly appealing to commuters and those requiring regional connectivity. Overall, the location combines city centre convenience with excellent transport links, offering practicality and accessibility in equal measure.

Description

Situated on the second floor, this three-bedroom apartment extends to approximately 63.37 sqm and offers bright, well-proportioned accommodation throughout. The layout includes a spacious entrance hall, an open-plan kitchen and living/dining area, three bedrooms, and a bathroom. While requiring renovation internally, the property offering generous living space and excellent potential presenting a great opportunity for a range of buyers including investors.


* No information, statement, description, quantity or measurement contained in any sales particulars, or given orally, or contained in any webpage, brochure, catalogue, email, letter, report, docket or hand out, issued by or on behalf of BRG Gibson Auctions Ltd, or the vendor in respect of the property shall constitute a representation, or a condition or a warranty on behalf of BRG Gibson Auctions Ltd, or the vendor. Any information, statement, description, quantity or measurement so given or contained in any such sales particulars, webpage, brochure, catalogue, email, letter, report or hand out issued by or on behalf of BRG Gibson Auctions Ltd, or the vendor are for illustration purposes only and are not to be taken as matters of fact. Any mistake, omission, inaccuracy or mis-description given orally, or contained in any sales particulars, webpage, brochure, catalogue, email, letter, report or hand out issued by or on behalf of BRG Gibson Auctions Ltd, or the vendor shall not give rise to any right of action, claim, entitlement or compensation against BRG Gibson Auctions Ltd, or the vendor. All bidders must satisfy themselves by carrying out their own independent due diligence, inspections or otherwise as to the correctness of any and all of the information, statements, descriptions, quantity or measurements contained in any such sales particulars, webpage, brochure, catalogue, email, letter, report or hand out issued by or on behalf of BRG Gibson Auctions Ltd, or the vendor.

Loading the bidding panel...

Make an Enquiry

Submit an enquiry and someone will be in contact shortly.

 
*  
*  
*
*
*

Share