Lot 110 - 1 Serpentine Road, Newtownabbey, County Antrim, BT36 7HD

  • Unconditional Online Auction Sale
  • Guide Price* : £180,000
  • Bedrooms: 0
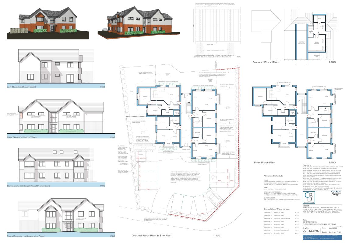
  • Attention Developers . Building Site with FFP for 8 Apartments .
  • Permission Granted on 2nd August 2025 . Reference LA04/2022/1779/F
  • Located on the corner of Serpentine Road and Whitewell Road . A Detached Vacant property is located on the Site
  • Site Entrance off Serpentine Road is to be Retained
  • There is good access from the Site to local amenities, shops, services and public transport.

Description

Attention Developers – Building Site with Full Planning Permission for 8 Apartments

Planning permission granted on 2nd August 2025
Reference: LA04/2022/1779/F
Existing site entrance off Serpentine Road is to be retained.

The location offers convenient access to local shops, schools, services and regular public transport links. The M2 motorway is close by for quick connections to Belfast City Centre and further afield.
A ready-to-go development opportunity in an established residential area.


* No information, statement, description, quantity or measurement contained in any sales particulars, or given orally, or contained in any webpage, brochure, catalogue, email, letter, report, docket or hand out, issued by or on behalf of BRG Gibson Auctions Ltd, or the vendor in respect of the property shall constitute a representation, or a condition or a warranty on behalf of BRG Gibson Auctions Ltd, or the vendor. Any information, statement, description, quantity or measurement so given or contained in any such sales particulars, webpage, brochure, catalogue, email, letter, report or hand out issued by or on behalf of BRG Gibson Auctions Ltd, or the vendor are for illustration purposes only and are not to be taken as matters of fact. Any mistake, omission, inaccuracy or mis-description given orally, or contained in any sales particulars, webpage, brochure, catalogue, email, letter, report or hand out issued by or on behalf of BRG Gibson Auctions Ltd, or the vendor shall not give rise to any right of action, claim, entitlement or compensation against BRG Gibson Auctions Ltd, or the vendor. All bidders must satisfy themselves by carrying out their own independent due diligence, inspections or otherwise as to the correctness of any and all of the information, statements, descriptions, quantity or measurements contained in any such sales particulars, webpage, brochure, catalogue, email, letter, report or hand out issued by or on behalf of BRG Gibson Auctions Ltd, or the vendor.

Loading the bidding panel...

Make an Enquiry

Submit an enquiry and someone will be in contact shortly.

 
*  
*  
*
*
*

Share