Lot 28 - 126, Duncairn Gardens, Belfast, BT15 2GL

  • Unconditional Online Auction Sale
  • Guide Price* : £41,000
  • Bedrooms: 3
  • Site with Full Planning Permision
  • Located just off Antrim Road
  • Under Planning Reference: LA04/2021/2343/F
  • View on Site at Anytime

Description

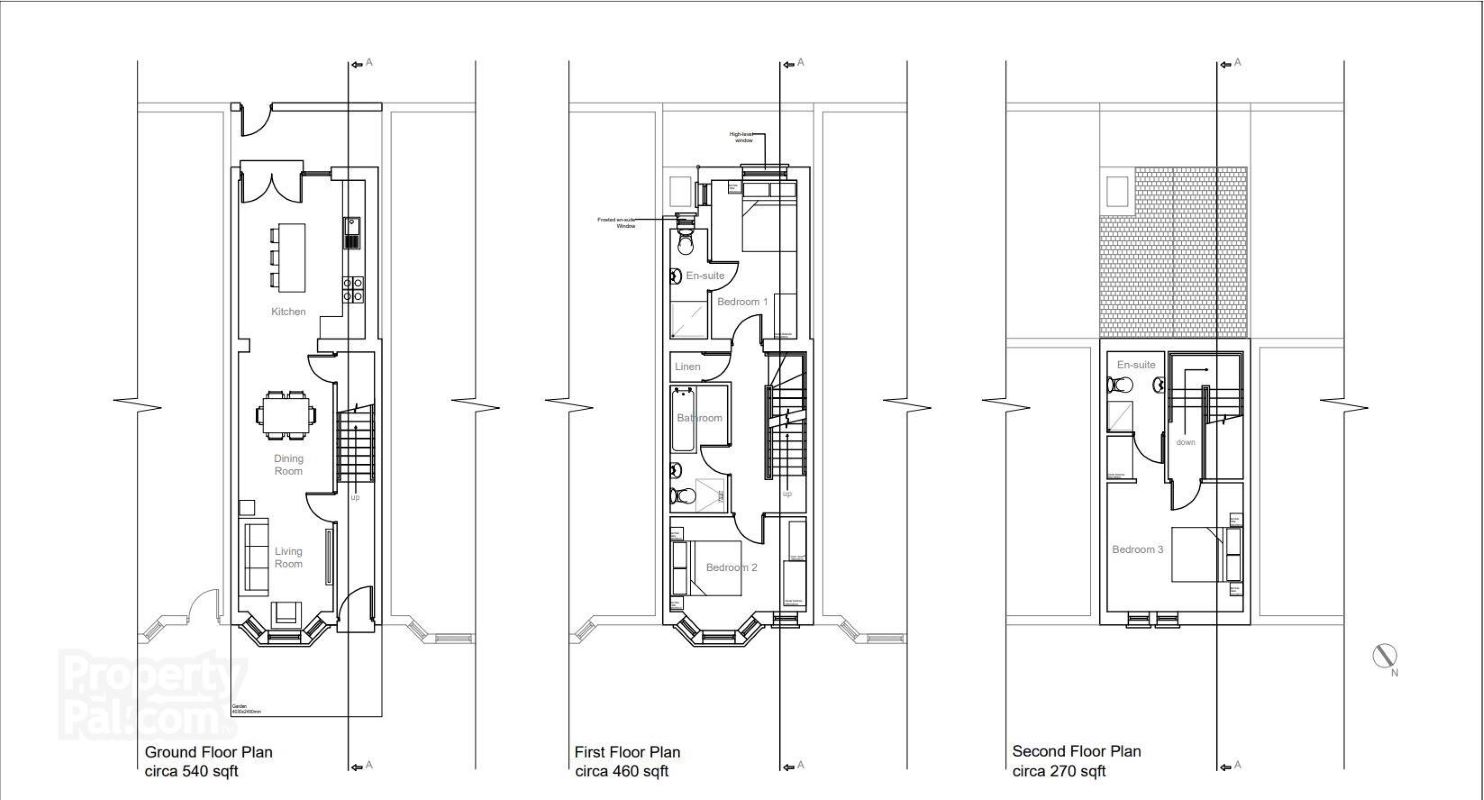
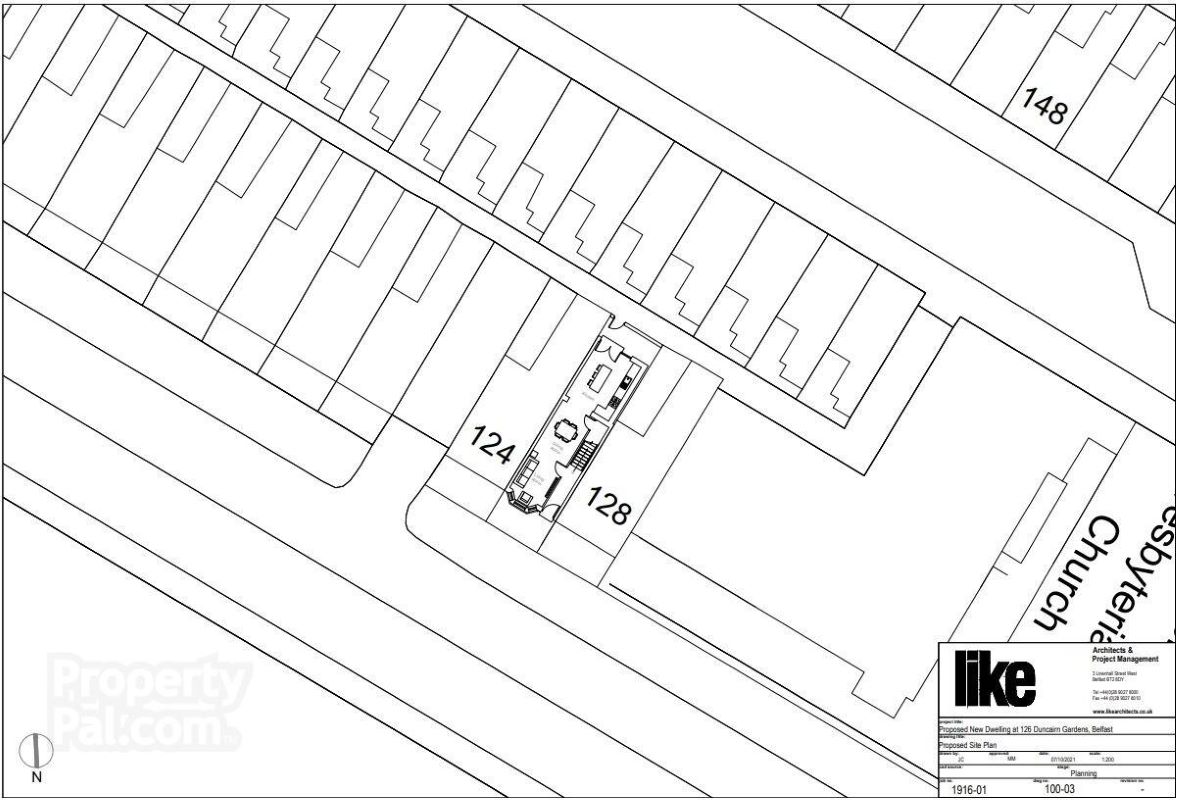
An exceptional development opportunity awaits at this site for a mid terrace townhouse. Perfectly positioned on Duncairn Gardens, just off the highly sought-after Antrim Road. With full planning permission granted for a 3-bedroom mid-terrace property, this is an ideal prospect for builders and developers looking to capitalize on the high demand for quality housing in the area.

Planning Details:
Full planning permission under reference: LA04/2021/2343/F.
Approved for a well-designed 3-bedroom mid-terrace home.


* No information, statement, description, quantity or measurement contained in any sales particulars, or given orally, or contained in any webpage, brochure, catalogue, email, letter, report, docket or hand out, issued by or on behalf of BRG Gibson Auctions Ltd, or the vendor in respect of the property shall constitute a representation, or a condition or a warranty on behalf of BRG Gibson Auctions Ltd, or the vendor. Any information, statement, description, quantity or measurement so given or contained in any such sales particulars, webpage, brochure, catalogue, email, letter, report or hand out issued by or on behalf of BRG Gibson Auctions Ltd, or the vendor are for illustration purposes only and are not to be taken as matters of fact. Any mistake, omission, inaccuracy or mis-description given orally, or contained in any sales particulars, webpage, brochure, catalogue, email, letter, report or hand out issued by or on behalf of BRG Gibson Auctions Ltd, or the vendor shall not give rise to any right of action, claim, entitlement or compensation against BRG Gibson Auctions Ltd, or the vendor. All bidders must satisfy themselves by carrying out their own independent due diligence, inspections or otherwise as to the correctness of any and all of the information, statements, descriptions, quantity or measurements contained in any such sales particulars, webpage, brochure, catalogue, email, letter, report or hand out issued by or on behalf of BRG Gibson Auctions Ltd, or the vendor.

Loading the bidding panel...

Make an Enquiry

Submit an enquiry and someone will be in contact shortly.

 
*  
*  
*
*
*

Share